Skip to main content
San José State University
Menu
Visit
Map
Campus Tours
Explore Downtown
SJSU Loves SJ
Hammer Theatre
Academics
Colleges and
Departments
Majors and
Programs
Academic Calendar
Classes
King Library
Admissions
Tuition and Fees
Housing
Professional Education
International Students
Parent and
Family Programs
Student Affairs
Health and Wellness
Safety
SJSU Cares
Events
Experience Campus
Traditions
Student Alumni
Connection
Research and
Innovation
Office of Research
Office of Innovation
Research Foundation
Student-Faculty
Collaborations
Become a
Research Partner
Centers
and Institutes
About
Administration
and Leadership
Facts and
Accomplishments
NewsCenter
Partnerships
Transformation
2030
Transformation
Defined
SJSU Online
Athletics
Alumni Association
Giving to SJSU
Canvas
one.SJSU
Search
University Menu .
Go to
SJSU
homepage.
Visit
Campus Tours
Maps
Parking
Silicon Valley
Hammer Theatre
SJSU Loves SJ
Academics
Colleges and Departments
Majors and Programs
Academic Calendar
Classes
King Library
Admissions
Tuition and Fees
Housing
Professional Education
International Students
Parents and Family Programs
Student Affairs
Health and Wellness
Safety
SJSU Cares
Events
Experience Campus
Traditions
Student Alumni Connection
Research and Innovation
Office of Research
Office of Innovation
Research Foundation
Student-Faculty Collaborations
Become a Research Partner
Centers and Institutes
Athletics
SJSU Online
About
Administration
and Leadership
Facts and
Accomplishments
NewsCenter
Partnerships
Transformation
2030
Transformation
Defined
Home
Music
Current Students
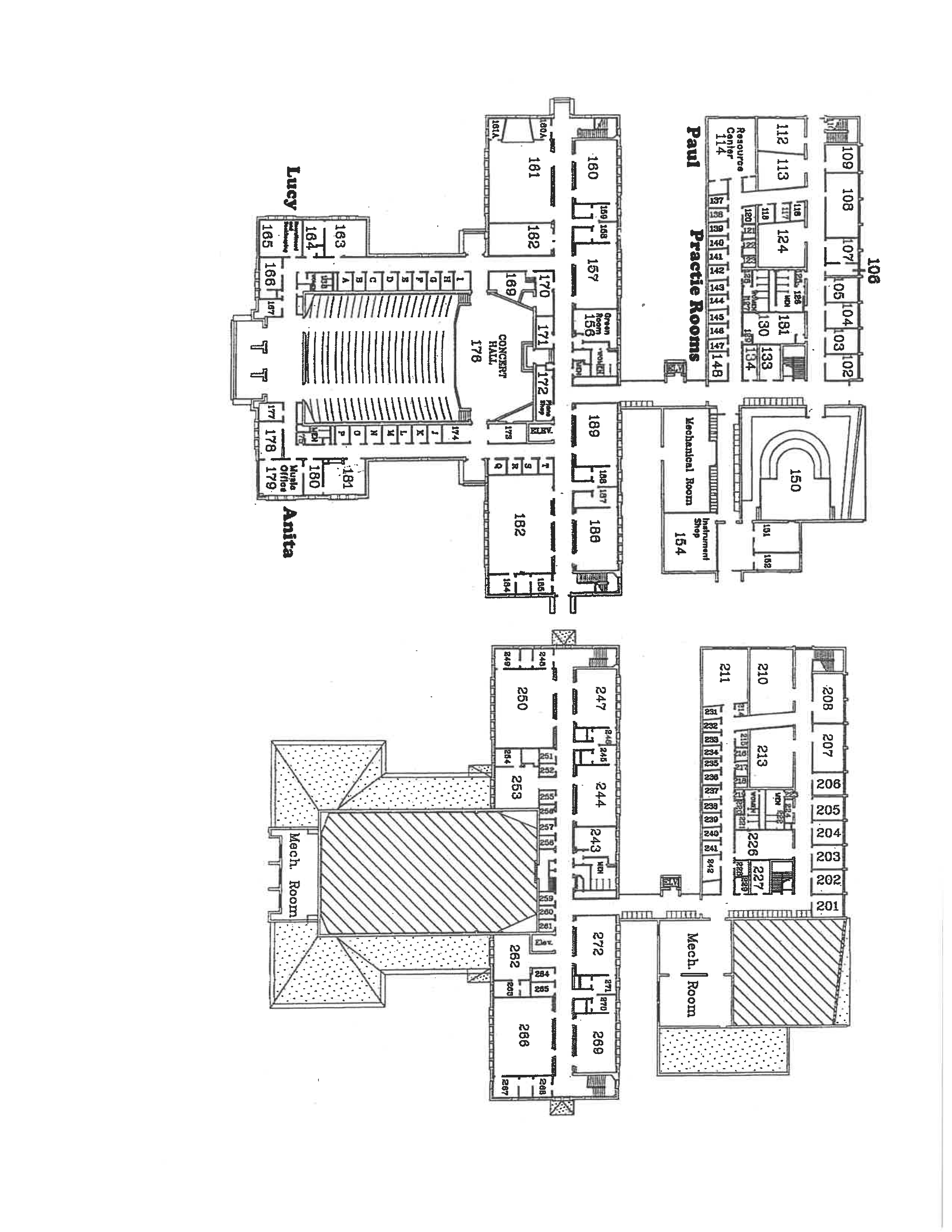
Music Building Map
School of Music
College of Humanities and the Arts
School of Music
College of Humanities and the Arts
Menu
About Us
About Us
History
Mission Statement and Program Learning Objectives
Summer Programs
Summer Programs
CBDA Honor Band Audition Help
Summer Camp
Summer Camp
choir_SC
Brass_SC
Flute_SC
Sax_institute
String_SC
String Project
SJSU Summer Choral Workshops
SJSU Young Musicians' Project
Job Opportunities
Organizations and Accreditations
Departments
Departments
Composition
Composition
Music Technology
Instrumental Performance
Instrumental Performance
Brass
Keyboard Studies
Keyboard Studies
Historic Keyboard Collection
Percussion
Strings
Woodwinds
Jazz Studies
Music Education
Music Education
Community Music Institute
Community Music Institute
Summer Camp Flute
SJSU Orff Levels 1, 2 and 3
Music Education Workshop Ensemble
Music Systems and Theory
Vocal Performance
Faculty & Staff
Faculty & Staff
Faculty By Area
Faculty Directory
Faculty Directory
Catalina Barraza
Tiffany Barry
Dahveed Behroozi
Sandra Bengochea
Jeffrey Benson
Corie Brown
Erica Buurman
Lucy Yamakawa Cox
Jamael Smith
Brian Ciach
Fred Cohen
Kara Ireland D'Ambrosio
Paul Ellison
Caitlyn Smith Franklin
Pablo Furman
Ray Furuta
Steve Sánchez
Gordon Haramaki
Timothy Harris
Diana Hollinger
Thomas Hornig
Divesh Karamchandani
Adelle-Akiko Kearns
Frank Lévy
Jason Lewis
Jeffrey Lewis
Ihang Lin
Steven Lin
Aaron Lington
Victoria Lington
Ernie Martinez
Jennifer Mitchell
Gwendolyn Mok
Bruce Moyer
Dr. José R. Torres-Ramos
Paul Olivo
Jacque Wilson Scharlach
Lucas Schwyter
Dr. Luis Orozco
Jonathan Smucker
Philip Skinner
Namiq Sultanov
Rick Vandivier
David Vickerman
Emeritus Faculty
Emeritus Faculty
Lou Harrison
Lou Harrison
About Lou Harrison
His Compositions
Discography
The Harrison-Colvig Collection
Admissions
Admissions
Prospective Students FAQ
How to Apply
Entrance Auditions
Entrance Auditions
Graduate Entrance Evaluation
Suggested Audition Repertoire
Video Audition Instructions
Audition and Portfolio Requirements
Undergraduate Degrees
Graduate Degrees
Graduate Degrees
Master of Music in Composition
Master of Music in Choral Conducting
Master of Music in Instrumental Conducting
Master of Music in Jazz Studies
Master of Music in Music Education
Master of Music in Music History
Master of Music in Instrumental Performance
Master of Music in Piano Performance
Master of Music in Vocal Performance
Three-Summer Master's Program in Music Education
Three-Summer Master's Program in Music Education
FAQ
Scholarships
Scholarships
Sponsored Scholarships List
Visit SJSU
Ensembles
Ensembles
Bands
Bands
San José Wind Conducting Symposium
Wind Ensemble
Symphonic Band
Marching Band
Marching Band
Timeline
Alumni
Calendar
Calendar
Recognition
Timeline
Uniform History
Color Guard
Drumline
Staff
Dance Team
FAQs
Honors Wind Ensemble
Pep Band
Wind Ensemble Previous Seasons
Chamber Ensembles
Choral and Opera
Choral and Opera
SJSU Summer Choral Workshop
Jazz Ensembles
Orchestra
Current Students
Current Students
Forms and Procedures
Forms and Procedures
Music Use Fee
Music Forms and Handbooks
Recital Packet and Process
Syllabus Information
Listening Hour Information
Recordings
Library Resources
Health and Safety
Piano Proficiency Exams
Music Student FAQs
Music Building Map
Calendars
Calendars
Concert Hall Calendar
Performance Calendar
Support Music
About Us
History
Mission Statement and Program Learning Objectives
Summer Programs
Job Opportunities
Organizations and Accreditations
Departments
Faculty & Staff
Faculty By Area
Faculty Directory
Emeritus Faculty
Admissions
Prospective Students FAQ
How to Apply
Entrance Auditions
Undergraduate Degrees
Graduate Degrees
Scholarships
Visit SJSU
Ensembles
Bands
Chamber Ensembles
Choral and Opera
Jazz Ensembles
Orchestra
Current Students
Forms and Procedures
Syllabus Information
Listening Hour Information
Recordings
Library Resources
Health and Safety
Piano Proficiency Exams
Music Student FAQs
Music Building Map
Calendars
Concert Hall Calendar
Performance Calendar
Support Music
Music Building Map
About Us
History
Mission Statement and Program Learning Objectives
Summer Programs
CBDA Honor Band Audition Help
Summer Camp
choir_SC
Brass_SC
Flute_SC
Sax_institute
String_SC
String Project
SJSU Summer Choral Workshops
SJSU Young Musicians' Project
Job Opportunities
Organizations and Accreditations
Departments
Composition
Music Technology
Instrumental Performance
Brass
Keyboard Studies
Historic Keyboard Collection
Percussion
Strings
Woodwinds
Jazz Studies
Music Education
Community Music Institute
Summer Camp Flute
SJSU Orff Levels 1, 2 and 3
Music Education Workshop Ensemble
Music Systems and Theory
Vocal Performance
Faculty & Staff
Faculty By Area
Faculty Directory
Catalina Barraza
Tiffany Barry
Dahveed Behroozi
Sandra Bengochea
Jeffrey Benson
Corie Brown
Erica Buurman
Lucy Yamakawa Cox
Jamael Smith
Brian Ciach
Fred Cohen
Kara Ireland D'Ambrosio
Paul Ellison
Caitlyn Smith Franklin
Pablo Furman
Ray Furuta
Steve Sánchez
Gordon Haramaki
Timothy Harris
Diana Hollinger
Thomas Hornig
Divesh Karamchandani
Adelle-Akiko Kearns
Frank Lévy
Jason Lewis
Jeffrey Lewis
Ihang Lin
Steven Lin
Aaron Lington
Victoria Lington
Ernie Martinez
Jennifer Mitchell
Gwendolyn Mok
Bruce Moyer
Dr. José R. Torres-Ramos
Paul Olivo
Jacque Wilson Scharlach
Lucas Schwyter
Dr. Luis Orozco
Jonathan Smucker
Philip Skinner
Namiq Sultanov
Rick Vandivier
David Vickerman
Emeritus Faculty
Lou Harrison
About Lou Harrison
His Compositions
Discography
The Harrison-Colvig Collection
Admissions
Prospective Students FAQ
How to Apply
Entrance Auditions
Graduate Entrance Evaluation
Suggested Audition Repertoire
Video Audition Instructions
Audition and Portfolio Requirements
Undergraduate Degrees
Graduate Degrees
Master of Music in Composition
Master of Music in Choral Conducting
Master of Music in Instrumental Conducting
Master of Music in Jazz Studies
Master of Music in Music Education
Master of Music in Music History
Master of Music in Instrumental Performance
Master of Music in Piano Performance
Master of Music in Vocal Performance
Three-Summer Master's Program in Music Education
FAQ
Scholarships
Sponsored Scholarships List
Visit SJSU
Ensembles
Bands
San José Wind Conducting Symposium
Wind Ensemble
Symphonic Band
Marching Band
Alumni
Calendar
Calendar
Recognition
Timeline
Uniform History
Color Guard
Drumline
Staff
Dance Team
FAQs
Honors Wind Ensemble
Pep Band
Wind Ensemble Previous Seasons
Chamber Ensembles
Choral and Opera
SJSU Summer Choral Workshop
Jazz Ensembles
Orchestra
Current Students
Forms and Procedures
Music Use Fee
Music Forms and Handbooks
Recital Packet and Process
Syllabus Information
Listening Hour Information
Recordings
Library Resources
Health and Safety
Piano Proficiency Exams
Music Student FAQs
Music Building Map
Calendars
Concert Hall Calendar
Performance Calendar
Support Music
Last Updated Mar 14, 2025